Vue 3D du hall d'entrée

Villa à Thônex.

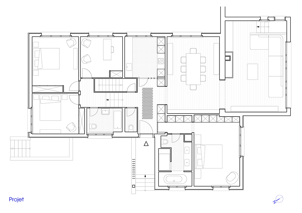
Les propriétaires de cette maison souhaitaient rénover le rez-de-chaussée, pour y intégrer leur chambre principale, en suite. Un grand meuble, plaqué chêne, dans le hall d’entrée crée un noyau de communication fonctionnel entre les pièces, et intègre une partie de la cuisine et divers rangements.

 

 

The owners of this house wanted to have their master bedroom on the ground floor, directly linked to a large bathroom and a dressing. A large wooden cabinet in the entrance hall create a functional core between rooms, and contains part of the kitchen and various hidden storages.

PROPRIÉTÉ

Maison de campagne

Country house

 

2 niveaux, 4 chambres

2 floors, 4 bedrooms

 

Surface : 140 m2

CLIENT

Privé

 

 

SITUATION

Thonex

Canton de Genève

Suisse

Vue 3D de la cuisine.
Vue 3D de la cuisine.
Vue 3D de la salle à manger.
Vue 3d de la salle à manger.
Vue 3D du salon
Vue 3D du salon.
Vue 3D de la chambre principale.
Vue 3D de la chambre principale.
Vue 3D de la salle de bain.
Vue 3D de la salle de bain.

© 2019

Antoine Chatiliez